Área do Cliente
|
Acesse pelo celular

Terreno à venda de 1.087m² | Condomínio Colinas do Parahyba - Alto da Ponte | São José dos Campos |

Terreno Condomínio - Alto da Ponte Residencial para Venda em São José dos Campos

|
Compartilhe:
Total para Acessórios valores sujeitos a alteração.

Condomínio
650,00
Total para Acessórios valores sujeitos a alteração.

Venda

(ITBI, Registro, Escritura e Certidões)
Consulte-nos
Residencial
Finalidade
17218
Referência
1087.00 m²
A. Terreno
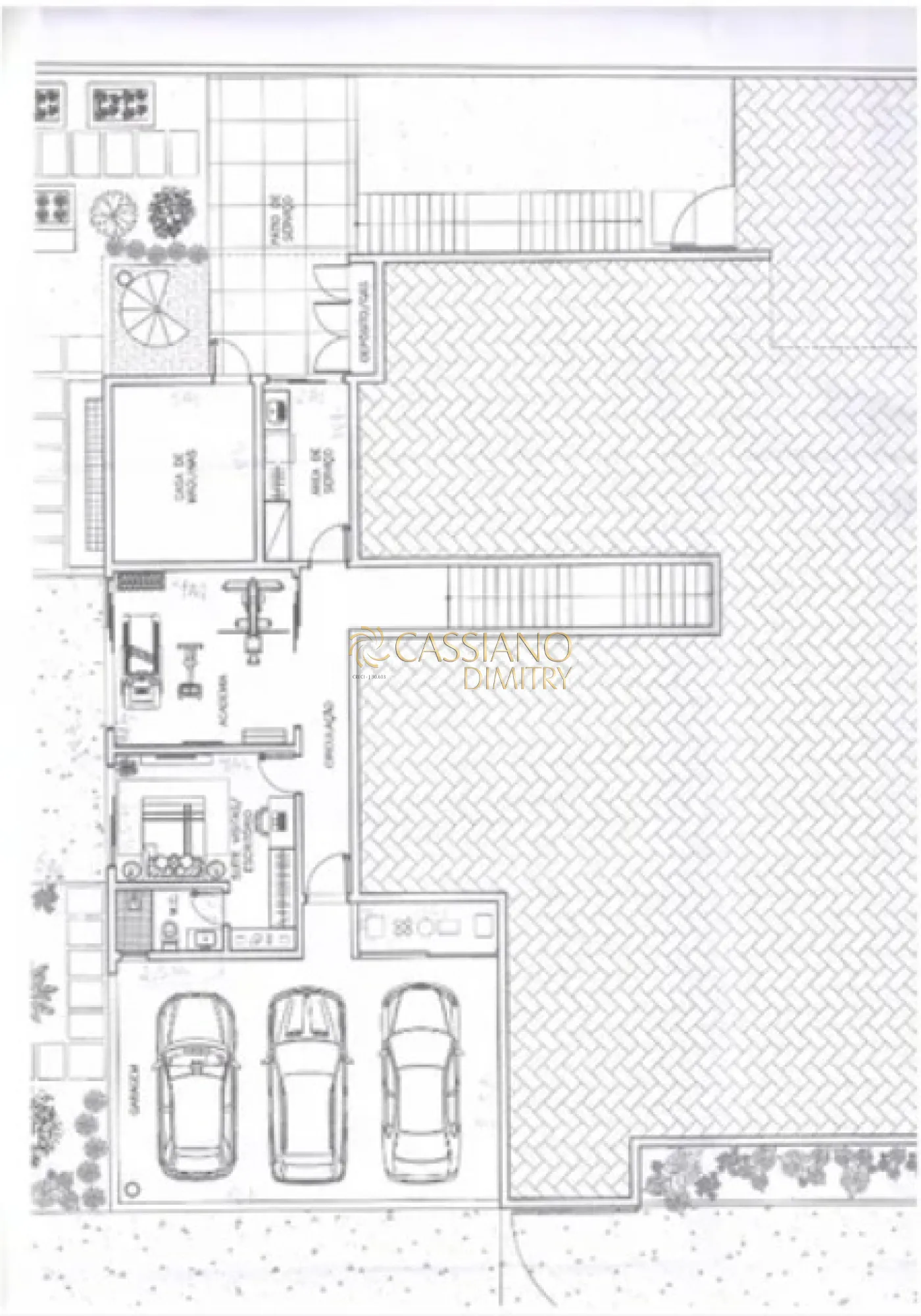
Descrição do Imóvel

TERRENO À VENDA
| COND. COLINAS DO PARAHYBA - ALTO DA PONTE |


Terreno à venda de 1.087m², sendo:
- Em condomínio fechado;
- Parte mais alta do condomínio com vista espetacular para serra da Mantiqueira e lago ao fundo;
- Com calçada já construída;
- À 20 minutos do Centro;
- Projeto completo incluso já aprovado na prefeitura e condomínio (arquitetônico, estrutural com sondagem de terreno e topográfico, hidráulico, elétrico, automação). O projeto é de um sobrado com 04 suítes, mas pode ser alterado.

Estuda proposta ou permuta.

Simule um Financiamento

Localização Terreno / Condomínio em São José dos Campos
Total para Acessórios valores sujeitos a alteração.


Condomínio
650,00

Total / Mês
650,00



Venda

(ITBI, Registro, Escritura e Certidões)
Consulte-nos

Total
330.000,00

DÚVIDAS SOBRE O IMÓVEL
PREENCHA O FORMULÁRIO


Concordo com os Termos e Privacidade
Imóveis Similares